homeutilityinformationviewprojectrecordtext


back to public projects

back to Shedhalle

art is not enough Shedhalle 7.12.96 - 2.2.97

Bio/Technologie: "Die Beschäftigung mit Bio/Technologie + Techno-Ästhetik ist der Versuch, Kunst wieder eine Relevanz zu geben, von der man annimmt, die hätte sie nicht mehr. Es liegt in der Logik, dass ein sich-auf-die-Höhe-der-Zeit bringen nicht honoriert wird, wenn mit Zeit Technologie gemeint ist. Und nicht, wenn es sich z.B. auf Rassismen und Kapitalinteresse bezieht."

art is not enough

"Nach 42'000 Toten reicht Kunst nicht aus. Ergreift kollektive und direkte Massnahmen, um die AIDS-Krise zu beenden."Gran Fury




Geschichte politischer Arbeit im Kunstbereich: "art is not enough - it's a hammer"

Artitecture/Architainment: "Neuere Ansätze in der Stadtforschung fragen nach der Rolle der Symbolproduzenten. Oft sind es Designer, Architekten und Künstler, die die Hegemonie der globalisierten Ökonomie in den Metropolen kulturell produzieren. Als Kulturproduzenten und Manager der Konsumption begründen und vermitteln sie Normen für marktorientierte Investitionen. Diesen Experten scheint heute eine ähnliche strategische Bedeutung zuzukommen wie der business class."


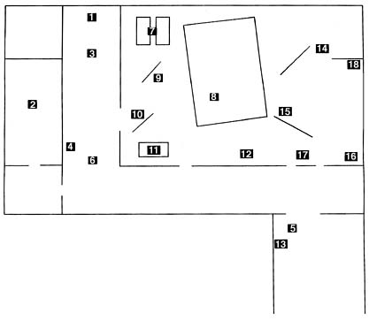
Plan Ausstellung Shedhalle:

  1. Archiv: Botschaft e.V., BüroBert, Freies Fach, minimal club, FrischmacherInnen, Group Material, StudentInnen der TU Wien/Michael Zinganel...
  2. Elfe Brandenburger stellt Überlegungen zu "männlicher Inspiration" an
  3. BüroBert "flugblattlieder"
  4. atelier über "Diskussion als Arbeitsmethode"
  5. Veit Bastian zeigt "Joy of Art"
  6. Mona Hahn/Oliver Fabel: "We are big enough to serve you, yet small enogh to know you"
  7. Deutsches Museum Bonn
  8. minimal club machen Theoretisches Fernsehen/Theoretical TV - Sales Show
  9. Natascha Sadr-Haghighian rechrchierte zum Welcome Trust: Touch the Screen
  10. Martha Rosler zu "If You lived here", Obdachlosigkeit, Wohnen, Gentrifizierung
  11. Kunst & Zeil in Frankfurt/Main
  12. KIK 5: Kunst und Kultur im Wettbewerb
  13. John Lennon/Yoko Ono tappen in die Form/Inhalt-Falle
  14. Erina König erinnert an "Düsseldorf um 68"
  15. Julie Ault dokumentiert "Cultural Economies"
  16. Justin Hoffmann fordert Art Strike/Kunststreik
  17. Undine Goldberg/Cornelia Wittmann zeigen Künstlerporträts
  18. Gespräch zu 3 Jahre Shedhalle